Bowling Pavilion Extension
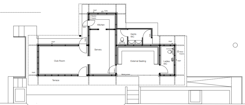
Bowling Pavilion
After the Centre Vale Park was bought in 1912 by the then Todmorden Borough Council. In 1915 Crown Green Bowling was introduced and a bowling pavilion built in traditional Edwardian Park building design with a stone base to window cill level, timber structure and concrete tile roof (historically in Rosemary Clay tile).
It was designed to act as simple base to provide some bowls locker space, small meeting room and a small kitchen and slightly modified over the years to the existing footprint as detailed below.
For the latest progress on this project visit the Updates & Milestones page.


